END UNIT #4508

3 Beds, 2.5 Baths | 1 Bed, 1 Bath Legal Basement Suite  |  Approx 1,590 total sq ft

$949,900


ATTENTION FIRST-TIME BUYERS

You may be eligible for a GST rebate of up to 100% on this new home.

Contact us today to find out more.


Disclaimer: RMS Measurements and floor plans have been derived from the builder’s plans and may vary slightly on completion.  Items of importance should not be relied upon without independent verification.

Nestled in the established Glendale community, this brand-new 4-unit townhome project offers a rare opportunity to enjoy luxury living without sacrificing space or comfort. Built by the renowned Zenith Group and set for completion in 2026, it features an extra-wide layout, high-end finishes, and a striking exterior. Plus, at this stage in construction, there is still time to upgrade or customize your finishes!

Boasting almost 1,600 sq. ft. of thoughtfully designed above-grade space, and a fully developed 1-bed LEGAL BASEMENT SUITE with its own separate entrance.
This is the perfect opportunity for long-term rental income potential (a great mortgage helper!) or easy multigenerational living.

Step inside to soaring 9-ft ceilings, oversized windows, and luxury vinyl plank flooring that fills the main floor with light. A welcoming foyer with a closet leads to an open living room anchored by a sleek gas fireplace and a large picture window overlooking the street. The central kitchen blends style and practicality with quartz countertops, an oversized single-basin sink, stainless steel appliances, including a gas stove, a spacious island with bar seating, and high-end built-in cabinetry with a coffee bar. A dining area overlooks the private, fully fenced backyard, complemented by a rear mudroom and discreet powder room. 

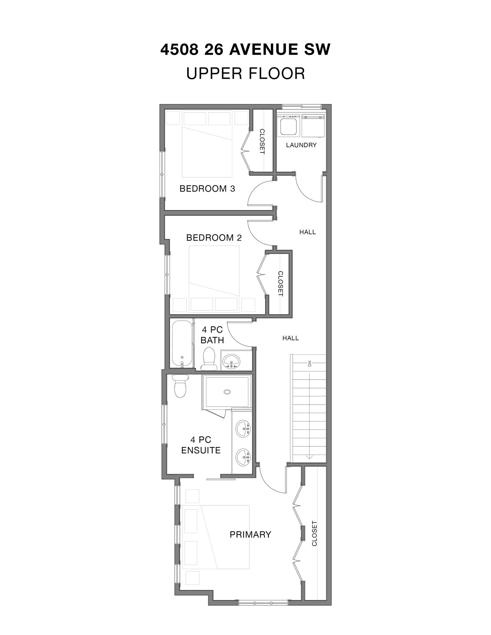
Upstairs features 3 bright bedrooms, including the spacious primary suite with a massive closet and private ensuite. The additional bedrooms each boast a closet and share the main 4-piece bath with quartz counters, extended vanity, modern matte-black fixtures, tiled floors, and a fully tiled tub/shower combo. A dedicated laundry closet with side-by-side appliances and a storage shelf adds convenience. 

The basement suite includes a private entrance, 8.6-ft ceilings, a sunken 100 sq. ft. patio, a spacious living area, a full kitchen, a 4-piece bath, in-suite laundry, and a large bedroom. 

The home also includes a single detached garage, a private, fully fenced concrete patio, and additional bike storage lockers.

Set in Glendale, one of Calgary’s most desirable communities, this home offers estate-level living with a welcoming, family-friendly atmosphere. Known for its tree-lined streets, sprawling lots, and strong sense of community, Glendale is a neighbourhood where residents enjoy the best of both worlds—peaceful suburban living and quick access to the downtown core. Families benefit from excellent schools, nearby parks, and recreational amenities, while commuters appreciate easy access to major roadways and transit. With the city at your fingertips and nature just steps away, Glendale offers a lifestyle as convenient as it is refined.

Contact us today for more information!

 

Get In Touch

4034 16 Street SW  Calgary,  Alberta  T2T 4H4 

Phone: 403-800-3212

info@urbanupgrade.ca

Get In Touch

Phone: 403-800-3212

EMAIL

Office Info

4034 16 Street SW  Calgary,  Alberta  T2T 4H4 

Stay Connected