LOWER UNIT #4

2 Beds, 2.5 Baths  |  Approx 915 total sq ft
End Unit

$450,000


ATTENTION FIRST-TIME BUYERS

You may be eligible for a GST rebate of up to 100% on this new home.

Contact us today to find out more.


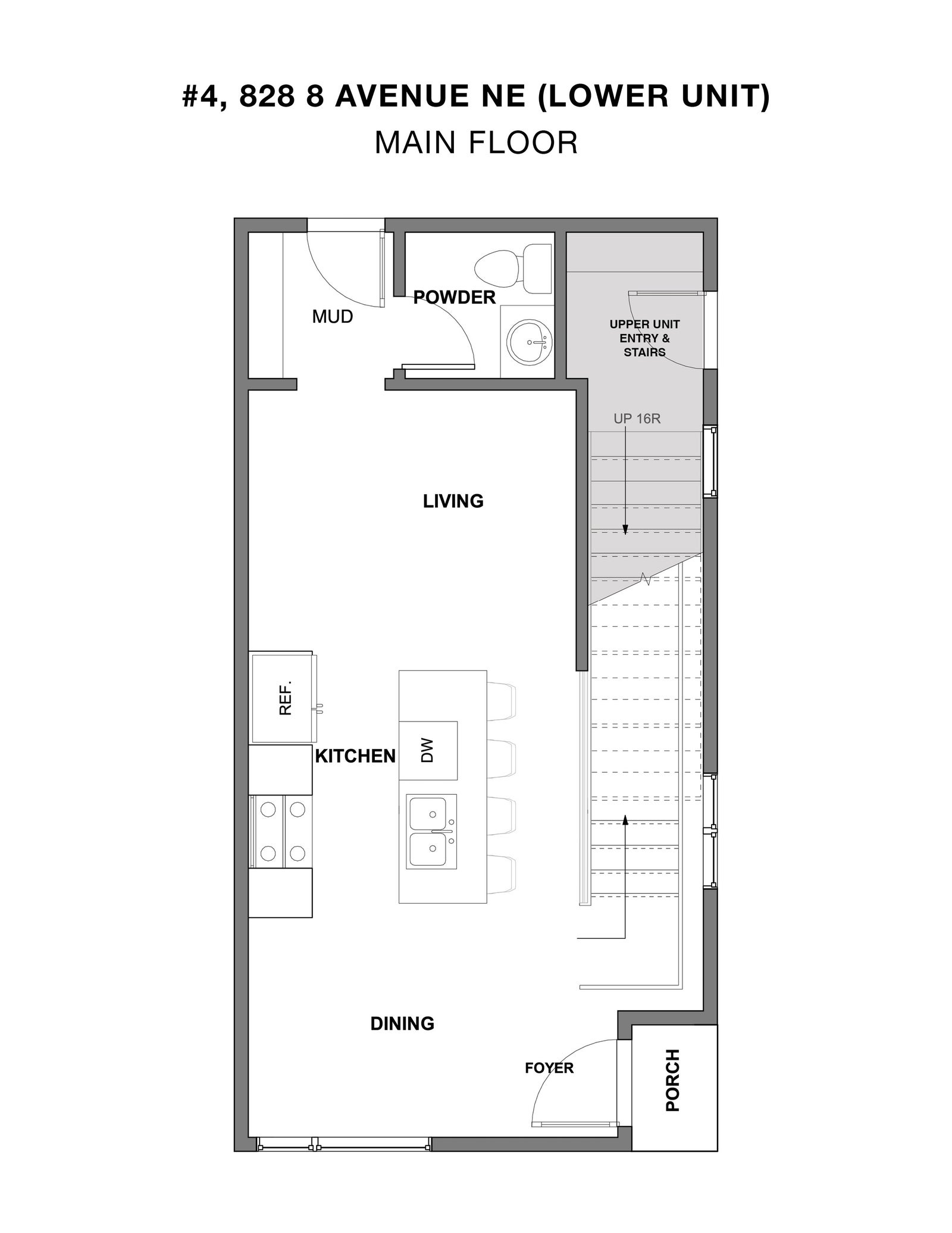
Disclaimer: RMS Measurements and floor plans have been derived from the builder’s plans and may vary slightly on completion.  Items of importance should not be relied upon without independent verification.

Nestled in the heart of Renfrew, just adjacent to the Community Association, this brand-new 8-unit stacked townhome project is a fantastic opportunity to live in a low-maintenance new home at an unbeatable price. Plus, at this stage in construction, there is still time to upgrade or customize your finishes!

This lower-level unit features over 900 sq ft of total developed living space, with 2 beds, 2.5 baths. Accessible via a private entrance on the front, the sunny main floor boasts sleek, low-maintenance luxury vinyl plank (LVP) flooring and large windows throughout. The open-concept kitchen is a standout feature, equipped with 2-tone slab-style cabinetry, tiled backsplash, quartz countertops including a central island with a breakfast bar, and a stainless-steel Samsung appliance package including a French-door refrigerator and ceramic top stove.

Adjacent to the kitchen, the open concept living and dining rooms are perfect for entertaining. This main floor is also home to a 2-piece powder room, which includes custom cabinetry, a quartz countertop, an undermount sink, and stylish pendant light above a full-height mirror.

Downstairs in the fully developed basement, LVP flooring runs throughout. Here you will find 2 bedrooms and 2 full bathrooms – perfect for roommates or frequent house guests. Each of these stylish 4-piece bathrooms boasts custom cabinetry, quartz counters, undermount sinks, and tiled showers. The basement level also includes a conveniently located laundry closet, making laundry chores more accessible and hassle-free.

This townhome showcases a blend of durability and style. Hardie Board and Smart Board detailing add architectural interest on the exterior, complemented by brushed concrete steps and walks for a polished look.

Long favoured by families, Renfrew is a tranquil community full of tree-lined streets and park space, featuring multiple schools such as Children’s Village School, Colonel Macleod School, St. Alphonsus School, and Stanley Jones School, along with sports fields and parks. The Renfrew Community Association is located just adjacent this property, offering another playground and an ice rink in the winter - there is little need to venture outside the area!

This neighbourhood is surrounded by numerous shopping and dining options, including Diner Deluxe, Boogie’s Burgers, and more, in the neighbouring community of Bridgeland. Enjoy convenient access to Calgary’s downtown core and major roadways for quick travel around the city.

Contact us today for more information!

 

Get In Touch

4034 16 Street SW  Calgary,  Alberta  T2T 4H4 

Phone: 403-800-3212

info@urbanupgrade.ca

Get In Touch

Phone: 403-800-3212

EMAIL

Office Info

4034 16 Street SW  Calgary,  Alberta  T2T 4H4 

Stay Connected